Bukti potong 1721 merupakan sebuah dokumen yang penting pada saat pelaporan pajak penghasilan. Melalui pelaporan bukti potong PPh 21, pemerintah dapat memantau, mengawasi, dan memastikan pemotongan pajak yang dilakukan oleh pemotong.
Selain itu, pelaporan bukti potong PPh 21 tahunan juga memberikan dasar data yang akurat untuk perhitungan dan pemenuhan kewajiban pajak bagi penerima penghasilan yang harus melaporkan penghasilannya dalam SPT tahunan.
Definisi Bukti Potong 1721
Bukti potong 1721 adalah dokumen yang berisi informasi pemotongan pajak penghasilan (PPh) pasal 21 oleh pihak pemotong, seperti perusahaan atau badan usaha lainnya. Bukti tersebut diberikan oleh pemotong pajak kepada penerima penghasilan.
Dokumen ini tidak hanya penting bagi pemotong, tetapi juga berperan signifikan untuk melindungi hak dan kewajiban WP yang menerima penghasilan yang dipotong pajak.
Bukti potong harus disiapkan dan dilaporkan sesuai dengan peraturan perpajakan. Waktu untuk melaporkannya setiap akhir tahun pajak atau Maret.
Artikel terkait: Cek Perhitungan PPh 25 Di Sini!
4 Jenis Bukti Potong 1721
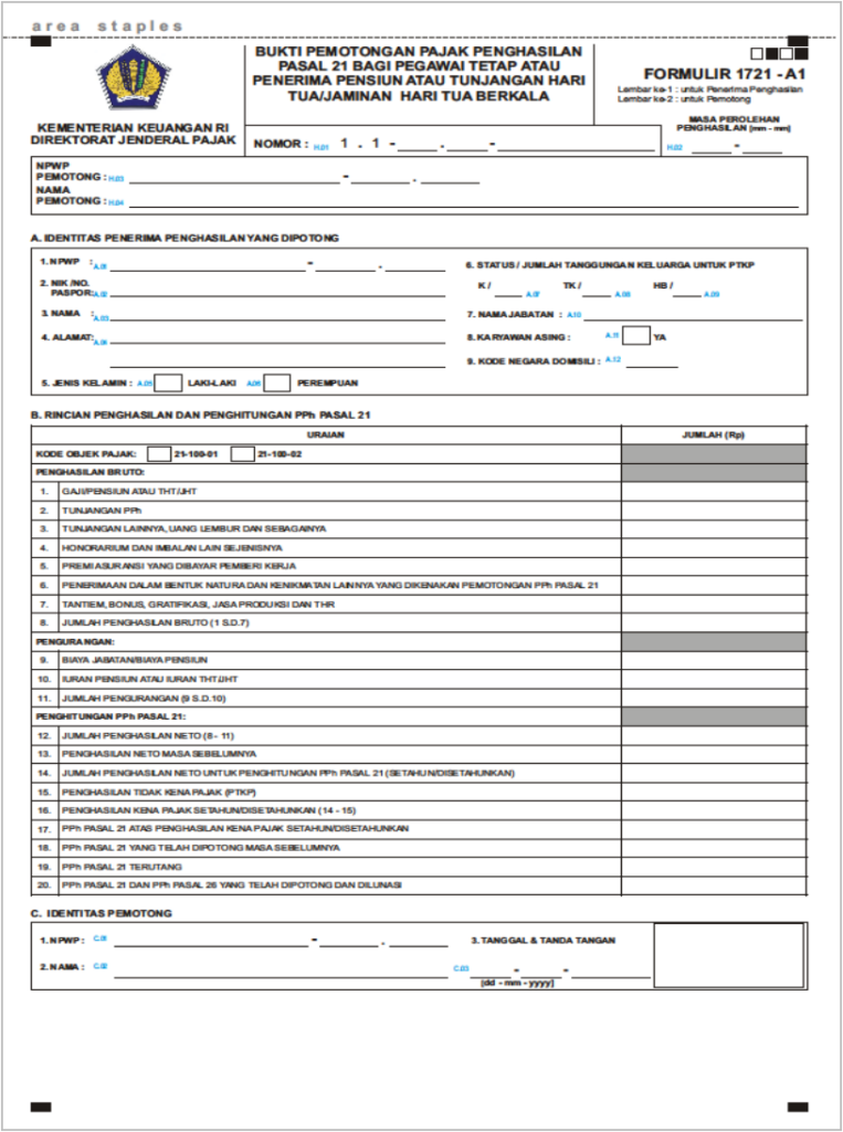
1) Bukti potong PPh 21 formulir 1721-A1
Bukti Potong PPh pasal 21 formulir 1721-A1 adalah dokumen penting bagi WP orang pribadi yang bekerja sebagai karyawan tetap atau penerima pensiun berkala. Dokumen ini berisi informasi yang lengkap mengenai pemotongan PPh 21 yang telah dilakukan oleh pemberi kerja selama satu tahun pajak.
2) Bukti potong PPh 21 formulir 1721-A2
Formulir 1721-A2 memiliki beberapa perbedaan dengan formulir 1721-A1, yaitu:
- Formulir 1721-A2 hanya digunakan untuk pegawai negeri sipil (PNS), anggota TNI/Polri, pejabat negara, atau pensiun
- Formulir 1721-A2 memiliki beberapa kolom tambahan untuk memasukkan informasi khusus yang berkaitan dengan pegawai negeri sipil, anggota TNI/Polri, pejabat negara, atau pensiun
Meskipun format keduanya berbeda, formulir 1721-A2 tetap memiliki fungsi sama dengan formulir 1721-A1, yakni sebagai sarana pelaporan pemotongan PPh 21 yang dilakukan oleh pemberi kerja.
3) Bukti potong PPh 21 formulir 1721-VI
Formulir 1721-VI ialah dokumen penting bagi WP orang pribadi yang menerima penghasilan dari pemotong pajak (bukan WP badan). Dokumen ini berisi informasi yang lengkap mengenai pemotongan PPh 21 yang telah dilakukan oleh pemotong pajak, sehingga WP dapat dengan mudah menghitung pajak terutang dalam SPT tahunan PPh orang pribadi.
4) Bukti potong PPh 21 Formulir 1721-VII
Formulir 1721-VII merupakan dokumen penting bagi WP badan dan penerima penghasilan. Formulir digunakan untuk melaporkan pemotongan PPh 21 yang bersifat final kepada Direktorat Jenderal Pajak. Bagi penerima penghasilan, formulir ini sebagai bukti pembayaran pajak kepada negara.
Artikel selanjutnya: Aturan Baru Pajak Penghasilan 2024: Hitungan & Contohnya
Contoh Dan Panduan Mengisi Bukti Potong

Dalam mengisi bukti potong 1721, pemotong perlu mengisi beberapa kolom penting, seperti berikut ini:
- Header
- Nomor: isi dengan nomor bukti potong yang diterbitkan oleh pemotong pajak
- Masa pendapatan penghasilan: isi dengan bulan dan tahun pajak yang bersangkutan
- Identitas pemotong: isi dengan nomor NPWP pemotong pajak
- Identitas penerima penghasilan yang dipotong
- Nama penerima penghasilan: isi dengan nama lengkap penerima penghasilan
- NIK penerima penghasilan: isi dengan nomor induk kependudukan penerima penghasilan
- NPWP penerima penghasilan: isi dengan nomor NPWP penerima penghasilan, jika ada
- Alamat penerima penghasilan: isi dengan alamat lengkap penerima penghasilan
- Rincian penghasilan dan perhitungan pph pasal 21
- Penghasilan bruto: isi dengan jumlah penghasilan bruto yang diterima oleh penerima penghasilan
- Pengurangan: isi dengan jumlah penghasilan yang dapat dikurangkan dari penghasilan bruto, seperti tunjangan keluarga, tunjangan jabatan, dan biaya jabatan
- Penghasilan neto: isi dengan jumlah penghasilan neto yang diterima oleh penerima penghasilan setelah dikurangi dengan penghasilan yang dapat dikurangkan
- PPh Pasal 21 terutang: isi dengan jumlah PPh Pasal 21 yang terutang berdasarkan tarif pajak yang berlaku
- PPh Pasal 21 yang dipotong: isi dengan jumlah PPh Pasal 21 yang telah dipotong oleh pemotong pajak
- Identitas pemotong
- Nama pemotong: isi dengan nama lengkap pemotong pajak
- NPWP pemotong: isi dengan nomor NPWP pemotong pajak
- Alamat pemotong: isi dengan alamat lengkap pemotong pajak

Leave a Reply